OCCUPATION AND HEALTH ›› 2026, Vol. 42 ›› Issue (4): 448-452.

• Treatise • Previous Articles     Next Articles

Evaluation of occupational disease hazard radiation protection control effect in industrial non-destructive testing construction project of a machinery equipment company in Guangxi

SHI Yanghai, CHEN Yongyong, SHI Yuhua, WANG Ping, LU Yuansheng()   

  1. Guangxi Zhuang Autonomous Region Institute for Prevention and Treatment of Occupational Disease,Nanning,Guangxi 530021,China
  • Received:2024-12-16 Revised:2025-01-28 Online:2026-02-15 Published:2026-02-13
  • Contact: LU Yuansheng,E-mail:ra226@qq.com

Abstract:

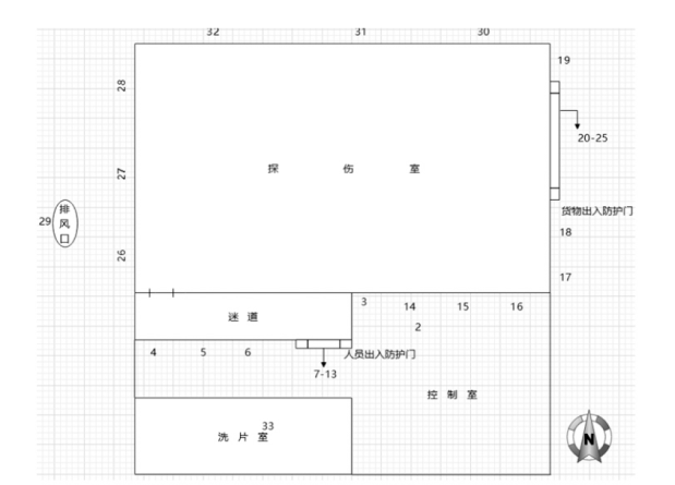
Objective To evaluate the effectiveness of radiological protection controls for the construction project involving two Class Ⅱ X-ray devices used for non-destructive testing(NDT) at a machinery equipment company in Guangxi(hereinafter referred to as "the construction entity"),ensuring the radiation safety and health of the radiation workers involved. Methods In April 2024,the Guangxi Zhuang Autonomous Region Institute for Prevention and Treatment of Occupational Disease(hereinafter referred to as "the evaluation unit") conducted on-site measurements at the industrial non-destructive testing(NDT) workplace based on current laws,regulations,rules,normative documents,and technical standards,and collected project data to comprehensively assess the effectiveness of the radiological protection controls for the construction project. Results During normal operation under rated working conditions,the ambient dose equivalent rate measured 30 cm outside the shielding walls and entrances/exits of the NDT room ranged from 0.06 to 0.18 μSv/h,complying with the limit requirements specified in the GBZ 117-2022 Radiological Protection Standard for Industrial Radiography. The occupational radiation dose potentially received by the workers over one year was approximately 0.05 mSv,which was less than the annual dose management target value 5 mSv/a. Conclusion The radiological protection control measures during normal production operations meet the legal,regulatory,and standard requirements for occupational disease prevention at both the national and local levels,therefore,the construction project satisfies the conditions for completion and acceptance.

Key words: Industrial non-destructive testing, X-ray, Construction project, Occupational disease hazard, Radiological protection, Control effectiveness

CLC Number: